SOHKO CATALOG
賃貸可能な倉庫カタログ
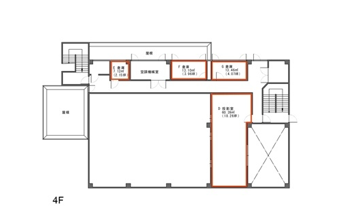
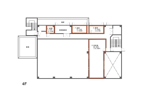
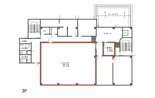
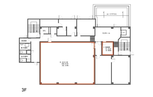
※募集終了 大船、天高8m超の元映像スタジオ部分ほか・複数区画あり
POINT
スタジオ、クリエイティブオフィス、ラボ、ギャラリーなどに最適
基本情報
| 所在地 | ― |
|---|---|
| 面積 | 114.98坪 |
| 賃料(税込) |
―円 (坪あたり―円) |
| 契約形態・期間 | ― |
| 管理費・共益費 | ― |
| 保証金 | ― |
| 償却 | ― |
| 礼金 | ― |
| 仲介手数料 | ― |
| 駐車場代 | ― |
リノベーションCHECK!
| アクセス(徒歩) |
JR東海道線・湘南新宿ライン・横須賀線・根岸線・横浜線 「大船」駅より徒歩17分 |
|---|---|
| アクセス(車) | 横浜横須賀道路「朝比奈」ICより10.3km |
| 構造・階数 | 鉄骨鉄筋コンクリート造、陸屋根スレート葺 地下1階地上4階建て |
| 柱スパン | ― |
| 天井高さ | 天井高:8m以上 |
| 床荷重 | ― |
| 設備(電気容量) | ― |
|---|---|
| 設備(水回り) | ― |
| 設備(EV) | 1基 |
| 設備(その他) | 1・3階男女別共用トイレ |
| 駐車場 | 有 |
| 用途地域 | ― |
| 竣工 | ― |
仲介はイーソーコ株式会社が行います。
東京都都知事免許(5) 第79210号
物件更新日