SOHKO CATALOG
賃貸可能な倉庫カタログ
※募集終了 自由が丘、道路に面した1階部分
東京都目黒区自由が丘2-8-8
POINT
・「自由が丘」駅より徒歩約4分の高立地。 ・飲食、アパレル物販など
基本情報
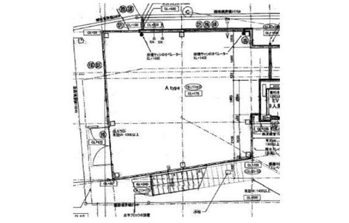
| 所在地 | 東京都目黒区自由が丘2-8-8 |
|---|---|
| 面積 | 22.11坪 |
| 賃料(税込) |
―円 (坪あたり―円) |
| 契約形態・期間 | ― |
| 管理費・共益費 | ― |
| 保証金 | ― |
| 償却 | ― |
| 礼金 | ― |
| 仲介手数料 | ― |
| 駐車場代 | ― |
リノベーションCHECK!
| アクセス(徒歩) | 東急大井町線「自由が丘」駅より徒歩約4分 |
|---|---|
| アクセス(車) | ― |
| 構造・階数 | 鉄骨造陸屋根 3階建て |
| 柱スパン | ― |
| 天井高さ | ― |
| 床荷重 | ― |
| 設備(電気容量) | ― |
|---|---|
| 設備(水回り) | ― |
| 設備(EV) | ― |
| 設備(その他) | トイレ、ミニキッチン |
| 駐車場 | ― |
| 用途地域 | ― |
| 竣工 | ― |
仲介はイーソーコ株式会社が行います。
東京都都知事免許(5) 第79210号
物件更新日