SOHKO CATALOG
賃貸可能な倉庫カタログ
※募集終了 芝浦IC・海岸通り、赤白ボーダーの外観の7階建て1棟倉庫
東京都港区海岸3-5-1
POINT
・海岸エリアの大型多目的ビル ・クリエイティブオフィス・スタジオ、GYM、スクールなど
基本情報
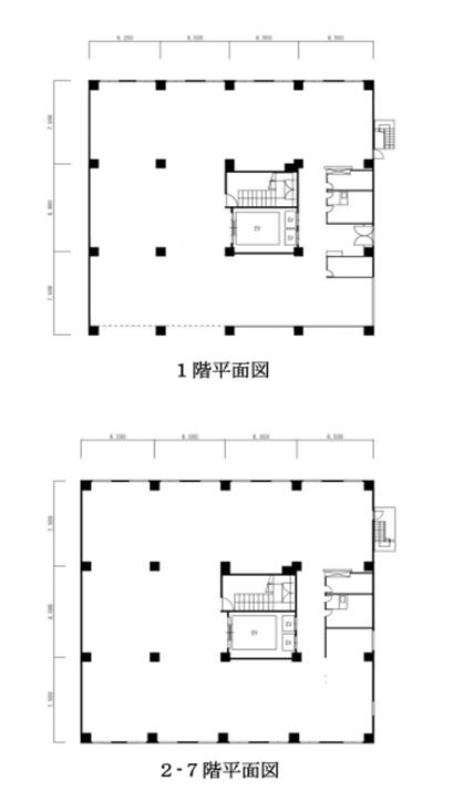
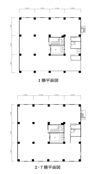
| 所在地 | 東京都港区海岸3-5-1 |
|---|---|
| 面積 | 約1,217.31坪 |
| 賃料(税込) |
―円 (坪あたり―円) |
| 契約形態・期間 | ― |
| 管理費・共益費 | ― |
| 保証金 | ― |
| 償却 | ― |
| 礼金 | ― |
| 仲介手数料 | ― |
| 駐車場代 | ― |
リノベーションCHECK!
| アクセス(徒歩) |
JR山手線「田町」駅より徒歩約15分 ゆりかもめ「芝浦ふ頭」駅より徒歩約10分 |
|---|---|
| アクセス(車) | ― |
| 構造・階数 | 鉄骨鉄筋コンクリート造 地上7階 |
| 柱スパン | ― |
| 天井高さ | 天井高(1-R階):3.1m~5.6m |
| 床荷重 | 1階3t、2-3階4.3t/坪(一部0.6t/坪)、4-7階5t/坪(一部0.6t/坪) |
| 設備(電気容量) | ― |
|---|---|
| 設備(水回り) | ― |
| 設備(EV) | 荷物用×1基(3t)、人用EV×2基(400kg) |
| 設備(その他) | ― |
| 駐車場 | ― |
| 用途地域 | ― |
| 竣工 | 1972年2月 |
仲介はイーソーコ株式会社が行います。
東京都都知事免許(5) 第79210号
物件更新日