SOHKO CATALOG
賃貸可能な倉庫カタログ
※募集終了 芝浦IC・海岸通り、天高最大5.4mの元白ホリスタジオ
東京都港区海岸3-5-10
POINT
倉庫のみ、事務所のみ等分割相談可能、搬出入時間制限有(平日8:00~18:00、土日祝不可)、水道光熱費別途費用
※保証会社要加入※借家人賠償責任保険要加入
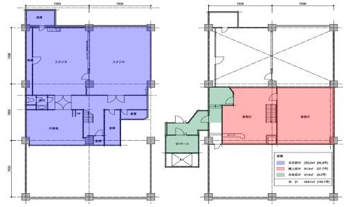
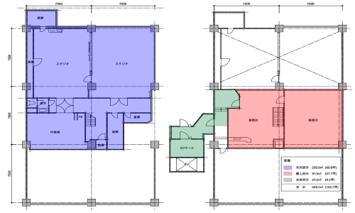
基本情報
| 所在地 | 東京都港区海岸3-5-10 |
|---|---|
| 面積 | 約292.4坪 |
| 賃料(税込) |
―円 (坪あたり―円) |
| 契約形態・期間 | 定期建物賃貸借契約 2026年3月末まで |
| 管理費・共益費 | ― |
| 保証金 | 保証金 月額賃料の6ヶ月分(非課税) |
| 償却 | 月額賃料の1ヶ月分(税込) |
| 礼金 | 月額賃料の1ヶ月分(税込) |
| 仲介手数料 | 月額賃料の1ヶ月分(税込) |
| 駐車場代 | ― |
リノベーションCHECK!
| アクセス(徒歩) | JR山手線「田町」駅より徒歩17分 |
|---|---|
| アクセス(車) | ⾸都⾼速道路「芝浦」出⼝より約700m |
| 構造・階数 | 鉄⾻・鉄筋コンクリート造陸屋根8階建 |
| 柱スパン | ― |
| 天井高さ | 梁下天井⾼:倉庫約2.2m、事務所約2.5m |
| 床荷重 | ― |
| 設備(電気容量) | ― |
|---|---|
| 設備(水回り) | 共用男女別トイレ・給湯有 |
| 設備(EV) | ― |
| 設備(その他) | 事務所内空調付き(残置物) |
| 駐車場 | ― |
| 用途地域 | 準工業地域 |
| 竣工 | ― |
仲介はイーソーコ株式会社が行います。
東京都都知事免許(5) 第79210号
物件更新日