SOHKO CATALOG
賃貸可能な倉庫カタログ
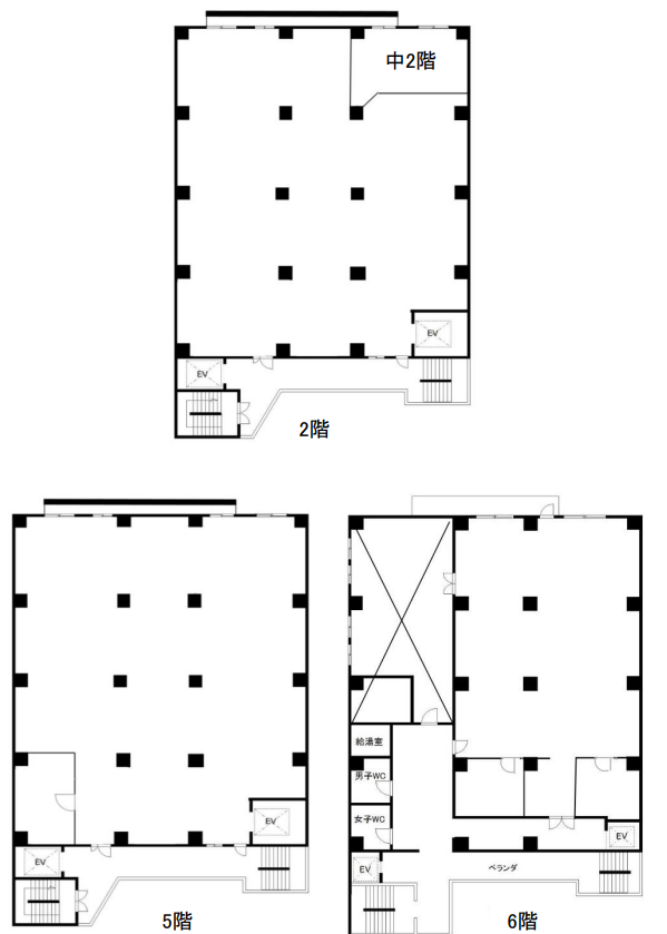
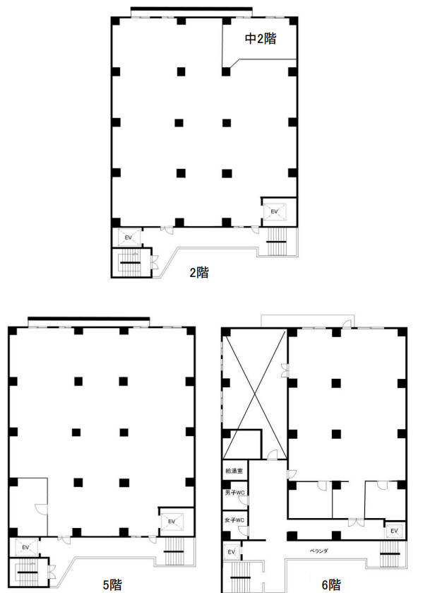
芝浦IC・海岸通り、6階建て倉庫の2、5、6階分割区画
東京都港区海岸3-7-19
POINT
クリエイティブオフィス、スタジオ向き、ベイエリアの見える物件、2階最大天井高4.4m
基本情報
| 所在地 | 東京都港区海岸3-7-19 |
|---|---|
| 面積 | 約296坪 |
| 賃料(税込) |
3,093,200円 (坪あたり10,450円) |
| 契約形態・期間 | 普通建物賃貸借 2年 |
| 管理費・共益費 |
2階・5階:1,100円/坪(税込) 6階事務所:1,650円/坪(税込) |
| 保証金 | 月額賃料の6ヶ月分(非課税) |
| 償却 | 月額賃料の1ヶ月分(税込) |
| 礼金 | 月額賃料の1ヶ月分(税込) |
| 仲介手数料 | 月額賃料の1ヶ月分(税込) |
| 駐車場代 | ― |
リノベーションCHECK!
| アクセス(徒歩) |
JR山手線「田町」駅より徒歩約16分 東京臨海新交通臨海線「芝浦ふ頭」駅より徒歩10分 |
|---|---|
| アクセス(車) | 首都高速芝浦ランプ至近 |
| 構造・階数 | 鉄骨鉄筋コンクリート造 地上6階建 |
| 柱スパン | ― |
| 天井高さ | 2階最大4.4m、5階最大3.5m、6階最大2.3m |
| 床荷重 | ― |
| 設備(電気容量) | ― |
|---|---|
| 設備(水回り) | ― |
| 設備(EV) | 貨物用EV×1基、人荷物用EV×1基※共用 |
| 設備(その他) | 2階にエアコン有り(残置物) |
| 駐車場 | ― |
| 用途地域 | 準工業地域 |
| 竣工 | ― |
仲介はイーソーコ株式会社が行います。
東京都都知事免許(5) 第79210号
物件更新日 2025年11月26日