SOHKO CATALOG
賃貸可能な倉庫カタログ
東雲・有明IC、4階建て倉庫の3階部分
東京都江東区東雲2丁目14番40号
POINT
りんかい線「東雲」駅より徒歩約7分の好立地。
専用トイレ2基・給湯室・予備室を備え、2段式立体駐車場も利用可能な利便性の高い物件です。
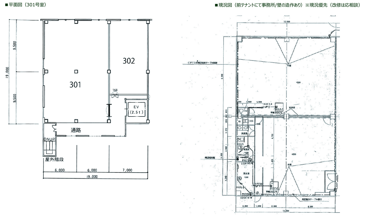
※物件詳細はPDF資料をご覧ください。
基本情報
| 所在地 | 東京都江東区東雲2丁目14番40号 |
|---|---|
| 面積 | 70.50坪 |
| 賃料(税込) |
1,008,150円 (坪あたり11,000円円) |
| 契約形態・期間 | 2年(建物賃貸借契約) |
| 管理費・共益費 | 3,300円/坪(税込) |
| 保証金 | 月額賃料の8ヶ月分(非課税) |
| 償却 | 月額賃料の2ヶ月分(税込) |
| 礼金 | 月額賃料の1ヶ月分(税込) |
| 仲介手数料 | 月額賃料の1ヶ月分(税込) |
| 駐車場代 | 月額33,000円/台(税込) |
リノベーションCHECK!
| アクセス(徒歩) | りんかい線「東雲」駅より徒歩約7分 |
|---|---|
| アクセス(車) | 首都高速道路「有明」ICより約1km |
| 構造・階数 | 鉄骨コンクリート造 4階建 |
| 柱スパン | ― |
| 天井高さ | 梁下天井高:約3.88m |
| 床荷重 | 0.7t/㎡ |
| 設備(電気容量) | ― |
|---|---|
| 設備(水回り) | 給湯室(洗面設備1ヵ所有) |
| 設備(EV) | 荷物用EV(2.5t・共用)×1(W約2.5mD約3.0mH約2.5m) |
| 設備(その他) | トイレ×2(専用)、予備室 |
| 駐車場 | 2段式立体駐車場(2~6台) |
| 用途地域 | 準工業地域 |
| 竣工 | 1991年 |
仲介はイーソーコ株式会社が行います。
東京都都知事免許(5) 第79210号
物件更新日 2025年11月26日